BACK TO RESIDENCES

Eastwood

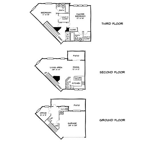
Diagram
City Center on 7th Apartment Homes - Pembroke Pines, FL - Eastwood Townhome Floor Plan
City Center on 7th Apartment Homes - Pembroke Pines, FL - Kitchen

One clear monthly price that includes 1 gig high-speed internet and all required fees—no surprises, just seamless living.

Available Units